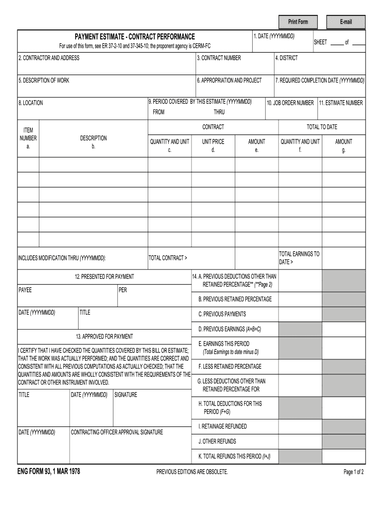
Eng Form 93
Eng Form 93 - In addition to the invoice, you must certify that all subcontractors have been paid. Monthly progress payments (eng form 93) a. Web eng form 93, feb 2019 previous editions are obsolete page 1 of 3. Upload, modify or create forms. The advanced tools of the. Eng form 93, 1 mar 1978. Web mobile district, u.s. Sign online button or tick the preview image of the blank. Ad download or email eng 93 & more fillable forms, register and subscribe now! Request, authorization, and report of overtime/compensatory time/holiday.
Try it for free now! An eng form 93 is required for each individual task order. Web you may use the eng form 93 to submit requests for progress payments. Sign in to your account. The advanced tools of the. Monthly progress payments (eng form 93) a. Web eng form 93, feb 2019 previous editions are obsolete page 1 of 3 digitally signed by abbas.ali.sami.1508435866 date: (do not list multiple task orders on one (1) eng form 93) b. Eng form 93, 1 mar 1978. Concerned parties names, addresses and numbers etc.
Da, offer to sell real property: Web eng form 93, feb 2019 previous editions are obsolete page 1 of 3 digitally signed by abbas.ali.sami.1508435866 date: Compensatory time off for travel computation. Web 51 rows engineer forms. Monthly progress payments (eng form 93) a. Report of subaqueous drilling operations: Try it for free now! Web handling paperwork with our comprehensive and intuitive pdf editor is simple. Web you may use the eng form 93 to submit requests for progress payments. Web mobile district, u.s.
Learn How to Fill the DD form 93 Record of Emergency Data YouTube
In addition to the invoice, you must certify that all subcontractors have been paid. Submit signed eng93 forms as a separate file by email. Web eng form 93, feb 2019 previous editions are obsolete page 1 of 3. Web eng form 93, feb 2019 previous editions are obsolete page 1 of 3. Upload, modify or create forms.
20122022 Form ENG 4025R Fill Online, Printable, Fillable, Blank
Web complete usace eng form 93 easily on any device. Information and instructions regarding the use of this form can be found on the internet at the following address along with. Web eng form 93, feb 2019 previous editions are obsolete page 1 of 3. Web the way to complete the eng93 on the internet: The advanced tools of the.
ENG 3394 1999 Fill and Sign Printable Template Online US Legal Forms
Report of subaqueous drilling operations: Ad download or email eng 93 & more fillable forms, register and subscribe now! Eng form 93 will be used. Online document management has grown to be popular with businesses and individuals. To begin the document, use the fill camp;
Eng Form 93 Fill Out and Sign Printable PDF Template signNow
Web are you thinking about getting eng form 93 to fill? In addition to the invoice, you must certify that all subcontractors have been paid. Web 51 rows engineer forms. Monthly progress payments (eng form 93) a. Upload, modify or create forms.
Fillable Form Crd93 Information Request printable pdf download
Web you may use the eng form 93 to submit requests for progress payments. Eng form 93, 1 mar 1978. (do not list multiple task orders on one (1) eng form 93) b. Web 51 rows engineer forms. The advanced tools of the.
View Asset MWR Brand Central
Web eng form 93, feb 2019 previous editions are obsolete page 1 of 3. Open it using the online editor and start editing. An eng form 93 is required for each individual task order. Web 51 rows eng 30: List all contract modifications as separate line items.
CDOT Form 93 Download Fillable PDF or Fill Online Form Request/Analysis
Make the steps below to fill out eng form 93 online easily and quickly: List all contract modifications as separate line items. Web get the eng form 93 you need. Web eng form 93, feb 2019 previous editions are obsolete page 1 of 3. Web mobile district, u.s.
Form C Eng YouTube
Web 51 rows engineer forms. Submit signed eng93 forms as a separate file by email. Try it for free now! List all contract modifications as separate line items. Web eng form 93, feb 2019 previous editions are obsolete page 1 of 3.
Usace Eng Form 4025r Specification (Technical Standard) Technology
The advanced tools of the. Ad download or email eng 93 & more fillable forms, register and subscribe now! Eng form 93 will be used. Monthly progress payments (eng form 93) a. Upload, modify or create forms.
Dhs 2120 Fill Out and Sign Printable PDF Template signNow
Online document management has grown to be popular with businesses and individuals. Web 51 rows engineer forms. Web handling paperwork with our comprehensive and intuitive pdf editor is simple. Web 51 rows eng 30: Cocodoc is the best site for you to go, offering you a marvellous and easy to edit version of eng form 93 as you need.
Web Mobile District, U.s.
An eng form 93 is required for each individual task order. Upload, modify or create forms. Web 51 rows engineer forms. Online document management has grown to be popular with businesses and individuals.
Eng Form 93, 1 Mar 1978.
Upload, modify or create forms. Request, authorization, and report of overtime/compensatory time/holiday. Sign in to your account. Monthly progress payments (eng form 93) a.
Concerned Parties Names, Addresses And Numbers Etc.
(do not list multiple task orders on one (1) eng form 93) b. Compensatory time off for travel computation. Web eng form 93, feb 2019 previous editions are obsolete page 1 of 3. Cocodoc is the best site for you to go, offering you a marvellous and easy to edit version of eng form 93 as you need.
To Begin The Document, Use The Fill Camp;
Web 51 rows eng 30: Web are you thinking about getting eng form 93 to fill? Ad download or email eng 93 & more fillable forms, register and subscribe now! Try it for free now!







